Title Image

ATHENIAN TAVERNA AT PETRALONA

ATHENIAN TAVERNA AT PETRALONA

YEAR

2025

LOCATION

Athens City Center

TYPE

Commercial

AREA

120m2

Concept: The Lemon Aesthetic

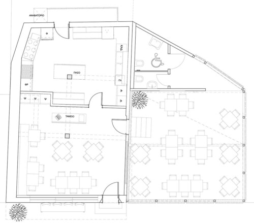
Lemonanthos is an all – day restaurant, located in the neighborhood of Petralona in the heart of Athens city center. It occupies ground-floor space of 120 m2, of which 50 m2 is a side yard, within a 1960s building. 

The space has been created to combine the lemon themed aesthetic with the local cuisine offered. The facade is designed to seamlessly blend the interior space with the side yard and simultaneously integrate the restaurant to the neighborhood. Classic elements from the past, such as the stone wall are preserved and masterfully combined with modern elements, crafted from scratch. 

Therefore, a playful aesthetic in calming pastel colors is created, in order to frame and highlight the lemon theme in the best possible way. The visitor is being welcomed in a familiar space, with the colors and textures of eucalyptus, pistachio, peach and ivory creating a tranquil environment to enjoy a meal. 

 

Clean, modern lines are formed with the seating plan layout, covering the owners need to accommodate as many clients possible. All the auxiliary spaces are situated in the back, so that the visitor’s attention is completely inward focused and not bothered by the functional needs of the restaurant. The kitchen has an extra back entrance for the staff, as well as access to the basement storage area through an exterior back staircase. The bathroom is strategically placed in the back outer area, to create more seating space. Natural light is achieved with a fully opened façade to the central road and the side yard. 

Bespoke seating in simple lines and matching colors, bring warmth to the design and complete it by fostering simplicity and serenity for the senses. 


Architecture: MX-Architecture
Interior design: MX-Architecture
Electromechanical: Leonidas Fraggedakis
Visuals: Giorgos Lazaridis